房屋出租
南园移动公司(疾控中心对面)旁有房屋出租..
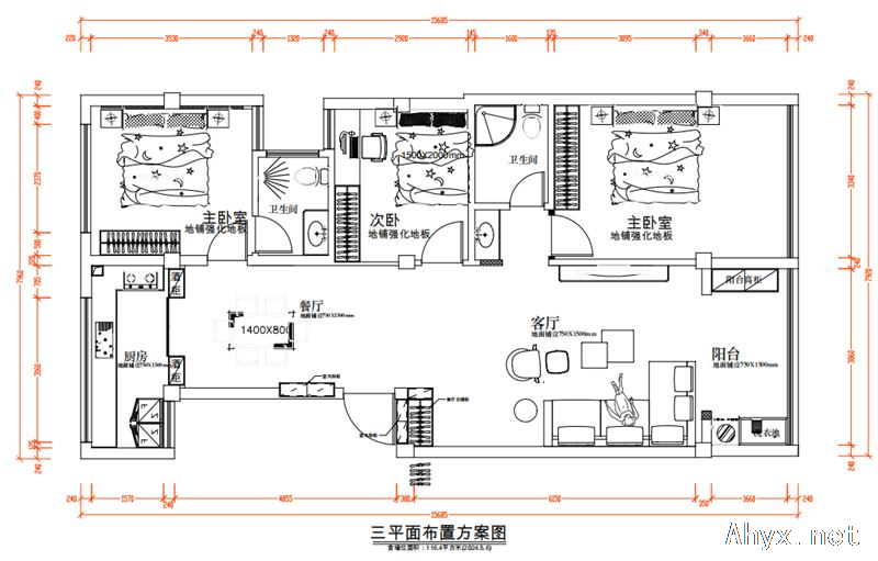
东山社区清泉小区自建房房屋出租¥30万
现有县城城北东山社区清泉小区自建房出售,房屋状态如下:
1、总层数4层,出售房屋在3层,采光良好;
2、房屋是自建毛坯,入户门、窗户(系统窗)已经安装,部分装修用材料已运到屋内,如细沙等,水电燃气已上户。
地点在城北东山社区,百度地图直接搜清泉小区,地理位置优越,离金翠兰商业区、体育馆、体育场、图书馆、文化馆、行政服务中心均不到2公里,离未来的高铁站也不远。
1、总层数4层,出售房屋在3层,采光良好;
2、房屋是自建毛坯,入户门、窗户(系统窗)已经安装,部分装修用材料已运到屋内,如细沙等,水电燃气已上户。
地点在城北东山社区,百度地图直接搜清泉小区,地理位置优越,离金翠兰商业区、体育馆、体育场、图书馆、文化馆、行政服务中心均不到2公里,离未来的高铁站也不远。
联系方式
提示:联系我时,请说明在岳西在线-掌上岳西看到的,谢谢!










